+4905251693900 vermietung@tk-world.de

Arbeiten im Oberen Feld

Gewerbeobjekt in attraktiver Lage

Gewerbestandort Oberes Feld

Ihr idealer Gewerbestandort im Oberen Feld von Paderborn: Strategisch günstig gelegen, bietet dieser Standort hervorragende Anbindungen an Verkehr und Infrastruktur. Vielseitige Flächen ermöglichen flexible Nutzungsmöglichkeiten für Gewerbe, Handel oder Dienstleistung. Unser Standort steht für Professionalität, Austausch und wirtschaftliche Stärke. Die Präsenz etablierter Firmen wie spectrum8, HK.DIGITAL und ROBIOTIC unterstreicht die Attraktivität des Standorts und schafft ein inspirierendes, geschäftsorientiertes Umfeld.

Profitieren Sie von der attraktiven Lage in einem dynamischen Umfeld und schaffen Sie den perfekten Rahmen für Ihr Business.

Objektdaten

Alle wichtigen Informationen zur Gewerbeimmobilie auf einen Blick.

Fläche

256 m²
Büro- und Lagerfläche

Lage

Gewerbegebiet Oberes Feld
Paderborn

Kosten

Miete: 10,49 € / m² monatlich
Provision: keine Mieterprovision

Objektbeschreibung

Dieses attraktive Büro befindet sich im Erdgeschoss eines 2019 errichteten, teilklimatisierten Bürogebäudes und besticht durch seine hellen, freundlichen Räume. Das Gebäude sowie die Parkflächen sind außerhalb der Öffnungszeiten durch einen Zaun und ein ferngesteuertes Automatiktor sicher geschützt. Zur Ausstattung gehören ein WC mit Dusche, ein Serverraum sowie eine grüne Terrasse zur Mitbenutzung – ideal für Pausen oder Meetings im Freien. Die Lage bietet eine perfekte Erreichbarkeit für Mitarbeiter und Kunden, auch durch die Anbindung an den ÖPNV. Im Mietpreis sind 10 Parkplätze enthalten, darüber hinaus stehen 24 weitere Parkplätze zur Verfügung, davon 4 mit Ladestation über einen öffentlichen Anbieter. Dank der hochwertigen Isolierung sind die Gesamtenergiekosten (inklusive Strom und Heizung) äußerst attraktiv und belaufen sich auf lediglich 2.500 € pro Jahr.

Ausstattung & allgemeine Informationen zum Objekt

Dieses Büro überzeugt durch eine moderne, hochwertige Ausstattung und ein durchdachtes Raumkonzept. Praktische Extras und clevere Details sorgen für ein angenehmes Arbeitsumfeld. Im Folgenden finden Sie alle wichtigen Ausstattungsmerkmale und Highlights auf einen Blick:

✓ Klimaanlage (teilklimatisiert)
✓ Nobilia-Küche
✓ C7-Verkabelung (tw)
✓ Dusche
✓ Akkustikpanele an der Decke
✓ Ladepunkte für E-Autos für MA und Gäste
✓ Werbemöglichkeit an Pilon /Fahne
✓ 34 Parkplätze davon 10 vor dem Haus inkl.
✓ Garten/ Terrassen-(Mit)Nutzung
✓ Barrierefrei (Erdgeschoss)

✓ Baujahr: 2019
✓ Objektzustand: Neuwertig
✓ Letzte Modernisierung: 2019
✓ Heizungsart: Wärmepumpe
✓ Energieträger: Solar

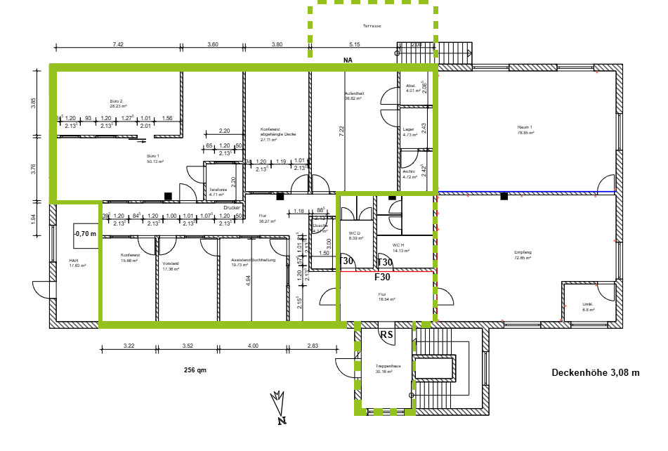
Grundriss & Raumaufteilung

Die Gewerbeimmobilie am Standort Oberes Feld in Paderborn überzeugt durch eine durchdachte Raumaufteilung auf insgesamt 256 m² Nutzfläche.

  • Einzel- und Großraumbüros: 50,13 m² und 28,23 m² flexibel unterteilbar, ideal für Teams oder Open-Space-Arbeitsplätze
  • Assistenz & Buchhaltung: 19,73  m²
  • Vorstand: 17,36 m²
  • Konferenzräume: 27,11 m² und 15,86 m² für Meetings, Schulungen oder Workshops
  • Aufenthaltsraum & Küche: 36, 82 m² modern ausgestattet und funktional angeordnet
  • Lagerräume: 4,73 m², Archiv 4,72 m² und Abstellraum 4,01 m² – ausreichend Platz für IT oder Materialien

Lage & Anfahrt

Sie sehen gerade einen Platzhalterinhalt von Google Maps. Um auf den eigentlichen Inhalt zuzugreifen, klicken Sie auf die Schaltfläche unten. Bitte beachten Sie, dass dabei Daten an Drittanbieter weitergegeben werden. Mehr Informationen

Anfahrtsinformationen

Unser Standort Oberes Feld 6, 33106 Paderborn liegt zentral und ist optimal angebunden. Sowohl mit dem Auto als auch mit öffentlichen Verkehrsmitteln erreichen Sie uns bequem:

  • Auto: Über die B64 und B1 ist die Innenstadt von Paderborn schnell erreichbar. Parkmöglichkeiten finden Sie direkt in der Umgebung.

  • Öffentliche Verkehrsmittel: Die nächste Bushaltestelle liegt nur wenige Gehminuten entfernt. Vom Hauptbahnhof Paderborn erreichen Sie uns in etwa 10 Minuten.

  • Fahrrad & Fußweg: Durch die zentrale Lage sind wir auch gut zu Fuß oder mit dem Fahrrad erreichbar.

  • Flughafen: 15 min Entfernung mit dem Auto

Kontakt

Haben Sie Fragen zu den freien Gewerbeflächen im Oberes Feld 6 in Paderborn und möchten einen Besichtigungstermin vereinbaren?

Füllen Sie einfach das Kontaktformular aus – wir melden uns schnellstmöglich bei Ihnen.


    Weitere Informationen zum Umgang mit Nutzerdaten finden sich in der Datenschutzerklärung.

    Bitte klicken Sie auf "Nachricht senden", um das Formular abzusenden: